ワイヤーロープ
弊社では、土木から建築用のワイヤーを販売しています。特殊なワイヤーも取り扱っていますので何なりとご相談ください。最大100mmのワイヤー販売も可能です。
玉掛けワイヤーロープ (JIS品)
標準品:麻芯
シンブル付きも加工可能です。
※在庫品:12mmx1m・2m・3m・4m
2点吊・4点吊ワイヤー
オプション加工
ワイヤー安全荷重表単位:トン
■ 麻芯 6×24 0/0 A種安全荷重
(安全係数:6)
| 2本2点吊り | 4本4点吊り | ロープ破断力 | ||
|---|---|---|---|---|
![]() | ![]() | |||
| 垂直 | 吊り角度 | 吊り角度 | ||
| ロープ径(㎜) | 2本吊り | 60° | 60° | |
| 9 | 1.35 | 1.16 | 1.75 | 4.07 |
| 10 | 1.67 | 1.44 | 2.16 | 5.03 |
| 12 | 2.41 | 2.08 | 3.12 | 7.24 |
| 14 | 3.28 | 2.83 | 4.24 | 9.85 |
| 16 | 4.30 | 3.70 | 5.56 | 12.9 |
| 18 | 5.43 | 4.68 | 7.02 | 16.3 |
| 20 | 6.70 | 5.77 | 8.66 | 20.1 |
| 22 | 8.10 | 6.98 | 10.4 | 24.3 |
| 24 | 9.66 | 8.33 | 12.5 | 29.0 |
| 26 | 11.3 | 9.77 | 14.6 | 34.0 |
| 28 | 13.1 | 11.3 | 16.9 | 39.4 |
| 30 | 15.0 | 12.9 | 19.4 | 45.2 |
| 32 | 17.1 | 14.7 | 22.1 | 51.5 |
| 36 | 21.7 | 18.7 | 28.0 | 65.1 |
| 40 | 26.8 | 23.1 | 34.6 | 80.4 |
■ 鋼芯 IWRC6×Fi(29) B種安全荷重
(安全係数:6)
| 2本2点吊り | 4本4点吊り | ロープ破断力 | ||
|---|---|---|---|---|
![]() | ![]() | |||
| 垂直 | 吊り角度 | 吊り角度 | ||
| ロープ径(㎜) | 2本吊り | 60° | 60° | |
| 12.5 | 3.60 | 3.10 | 4.65 | 10.8 |
| 14 | 4.50 | 3.87 | 5.81 | 13.5 |
| 16 | 5.90 | 5.08 | 7.62 | 17.7 |
| 18 | 7.46 | 6.43 | 9.65 | 22.4 |
| 20 | 9.20 | 7.93 | 11.8 | 27.6 |
| 22.4 | 11.5 | 9.94 | 14.9 | 34.6 |
| 25 | 14.4 | 12.4 | 18.6 | 43.2 |
| 28 | 18.0 | 15.5 | 23.3 | 54.1 |
| 30 | 20.7 | 17.8 | 26.7 | 62.1 |
| 31.5 | 22.8 | 19.6 | 29.5 | 68.5 |
| 33.5 | 25.8 | 22.2 | 33.4 | 77.5 |
| 40 | 36.6 | 31.6 | 47.4 | 110 |
| 42.5 | 41.6 | 35.9 | 53.8 | 125 |
| 45 | 46.6 | 40.2 | 60.3 | 140 |
| 47.5 | 52.0 | 44.8 | 67.2 | 156 |
| 50 | 57.6 | 49.7 | 74.5 | 173 |
リング・チェーン
マーテック マスターリンク MFA
- 1本吊りから4本吊りまで使用できるマスターリンクです。
- シングルロックCL、ダブルロックCLD、シングルグラブCG、ダブルグラブCGDとあわせてご使用ください。
※基本 12mmの2点4点吊ワイヤーは、3.2t、16mmの2点4点吊ワイヤーは、6.4tを選定します。
| 型式 | 使用荷重 (t) | チェーン線径 (mm) | 寸法(mm) | 質量 (kg) |
||||
|---|---|---|---|---|---|---|---|---|
| 1本吊り | 2本吊り | 3-4本吊り | L | B | D | |||
| MFA-6-10 | 1.0 | 6 | - | - | 100 | 60 | 11 | 0.2 |
| MFA-86-10 | 2.0 | 6/8 | 6 | - | 120 | 60 | 13 | 0.4 |
| MFA-108-10 | 3.2 | 10 | 6/8 | 6 | 140 | 80 | 17 | 0.8 |
| MFA-1310-10 | 6.4 | 13 | 8/10 | 8 | 160 | 95 | 22 | 1.5 |
| MFA-1613-10 | 10.0 | 16 | 13 | 10 | 190 | 110 | 28 | 2.8 |
| MFA-2016-10 | 16.0 | 20 | 16 | 13 | 240 | 140 | 34 | 5.2 |
| MFA-2220-10 | 25.0 | - | 20 | 16 | 250 | 150 | 40 | 7.3 |
キトー マスターリンク HMG/HMH(大型クレーンフック用)
- 開口部が広く、各種大型クレーンやタワークレーン
またワイヤーホイストの使用に最適です。 - 1本吊りから3~4本吊りまで使用できます。
- ハイカップリングを組み合わせてご使用ください。
| 型式 | 使用荷重 (t) | チェーン線径 (mm) | 寸法(mm) | 質量 (kg) |
||||
|---|---|---|---|---|---|---|---|---|
| 1本吊り | 2本吊り | 3-4本吊り | p | a | d | |||
| HMG0807 | 1.1 | 6 | - | - | 225 | 112 | 17 | 1.2 |
| 1.5 | 7 | - | - | |||||
| 1.7 | - | 6 | - | |||||
| 2.0 | 8 | 7 | 6 | |||||
| HMG1008 | 3.2 | 10 | 8 | 7 | 225 | 112 | 20 | 1.6 |
| HMG1310 | 5.0 | 13 | 10 | 8 | 225 | 112 | 23 | 2.2 |
| HMH1613 | 8.0 | 16 | 13 | 10 | 340 | 180 | 36 | 8.1 |
| HMH2016 | 11.5 | 20 | 16 | 13 | 340 | 180 | 40 | 10.1 |
チェーン
| 呼び名 | 最大荷重 | 線径 | A | B |
|---|---|---|---|---|
| SV050 | 0.8t | 5.0mm | 18.0 | 15.0 |
| SV063 | 1.25t | 6.3mm | 22.1 | 21.4 |
| SV080 | 2.0t | 8.0mm | 28.0 | 27.2 |
| SV100 | 3.2t | 10.0mm | 35.1 | 34.0 |
| SV125 | 5.0t | 12.5mm | 43.8 | 42.5 |
| SV160 | 8.0t | 16.0mm | 56.0 | 54.4 |
| SV200 | 12.5t | 20.0mm | 70.0 | 68.0 |
フック
ロッキングフック BK
| 名称 | 使用荷重(t) | チェーン線径(mm) | 寸法(mm) | 質量(kg) | |||||
|---|---|---|---|---|---|---|---|---|---|
| L | B | E | A | G | H | ||||
| BK-6-10 | 1.2 | 6 | 109 | 29 | 22 | 12 | 15 | 21 | 0.5 |
| BK-7/8-10 | 2.0 | 8 | 137 | 37 | 28 | 14 | 17 | 25 | 0.9 |
| BK-10-10 | 3.2 | 10 | 168 | 45 | 34 | 16 | 21 | 30 | 1.5 |
| BK-13-10 | 5.3 | 13 | 207 | 55 | 44 | 20 | 30 | 39 | 3.0 |
| BK-16-10 | 8.0 | 16 | 254 | 62 | 56 | 26 | 37 | 48 | 5.5 |
| BK-18/20-10 | 10.0 | 20 | 289 | 68 | 60 | 30 | 46 | 63 | 9.0 |
| BK-22-10 | 12.0 | 22 | 320 | 80 | 70 | 32 | 50 | 62 | 11.3 |
| BK-26-10 | 17.0 | 26 | 342 | 100 | 80 | 35 | 54 | 68 | 16.4 |
| BK-32-8 | 20.0 | 32 | 400 | 120 | 90 | 40 | 62 | 86 | 23.3 |
スイベルフック BKL
| 名称 | 使用荷重(t) | チェーン線径(mm) | 寸法(mm) | 質量(kg) | ||||||
|---|---|---|---|---|---|---|---|---|---|---|
| L | B | C | E | A | G | H | ||||
| BKL-6-10 | 1.2 | 6 | 149 | 29 | 23 | 33 | 11 | 15 | 21 | 0.7 |
| BKL-7/8-10 | 2.0 | 8 | 183 | 37 | 27 | 38 | 12 | 17 | 25 | 1.2 |
| BKL-10-10 | 3.2 | 10 | 218 | 45 | 37 | 44 | 15 | 21 | 30 | 2.0 |
| BKL-13-10 | 5.3 | 13 | 281 | 55 | 47 | 47 | 19 | 30 | 39 | 4.0 |
| BKL-16-10 | 8.0 | 16 | 341 | 62 | 65 | 62 | 23 | 37 | 48 | 7.2 |
| BKL-18/20-10 | 10.0 | 20 | 368 | 68 | 69 | 72 | 31 | 46 | 63 | 11.2 |
Vフック(ラッチ付)
| 品番 | 商品コード | 呼び 使用荷重 (ton) | 寸法(mm) | 質量 (kg) |
|||||||||
|---|---|---|---|---|---|---|---|---|---|---|---|---|---|
| A | B | C | D | D' | E | F | G | H | I | ||||
| VHK-0.32 | 1010519 | 0.32 | 85 | 9 | 20 | 6 | 6 | 24.5 | 32 | 30 | 12 | 13 | 0.18 |
| VHK-0.63 | 1356417 | 0.63 | 108 | 10.5 | 25 | 8 | 8 | 30 | 40 | 45 | 15 | 19 | 0.35 |
| VHK-1.25 | 1227323 | 1.25 | 123 | 18 | 30 | 11 | 11 | 33 | 45 | 48 | 20 | 25 | 0.7 |
| VHK-2 | 1356425 | 2 | 143 | 20 | 35 | 13 | 13 | 37 | 50 | 57 | 24 | 30 | 1.12 |
| VHK-3.2 | 1001195 | 3.2 | 171 | 25 | 42 | 16 | 16 | 46 | 60 | 68 | 30 | 36 | 2.05 |
| VHK-5 | 1001196 | 5 | 207 | 32 | 50 | 20 | 20 | 60 | 75 | 86 | 36 | 45.5 | 3.85 |
LSフック
| 品番 | 呼び(t) | 寸法(mm) | 質量 (kg) |
|||||||
|---|---|---|---|---|---|---|---|---|---|---|
| A | A' | B | C | D | E | G | H | |||
| TLSS3 | 0.32 | 9.5 | 6 | 19 | 14 | 33 | 80 | 26.5 | 13.5 | 0.2 |
| TLSS6 | 0.63 | 10.5 | 8 | 26 | 17.5 | 41 | 101 | 32 | 18.5 | 0.3 |
| TLS01 | 1.25 | 18 | 11 | 31 | 20 | 47 | 114 | 34 | 24 | 0.7 |
| TLS02 | 2.0 | 18.5 | 13.5 | 37 | 20 | 52 | 134.5 | 42 | 28 | 1.0 |
| TLS03 | 3.2 | 26 | 16 | 44 | 31.5 | 62 | 161 | 49 | 33.5 | 1.9 |
| TLS05 | 5.0 | 32 | 20 | 52 | 40 | 78 | 197 | 61 | 41.5 | 3.4 |
ベルトスリング
パワースリングKP-1型(JIS Ⅲ E型) JIS B 8818-2007
(単位:t)
| J I S 規 格 | ス リ ン グ 幅 (W) ㎜ | ア イ 長 さ (A) ㎜ | 縫 製 部 長 さ (a) ㎜ | 基本 使用荷重 t以下 | チョーク吊り t以下 | バスケット吊りt以下 | 2点吊り t以下 | 破断荷重 t以上 |
|||
| 2点吊り | 4点吊り | ||||||||||
![]() | ![]() | ![]() | ![]() | ![]() | ![]() | 社 内 規 格 | J I S |
||||
| ⅢE-25 | 25 | 200 | 200 | 0.8 | 0.64 | 1.6 | 3.2 | 1.36 | 1.12 | 5 | 5 |
| ⅢЕ-35 | 35 | 250 | 200 | 1.25 | 1.0 | 2.5 | 5.0 | 2.12 | 1.75 | 7.5 | 7.5 |
| ⅢE-50 | 50 | 300 | 230 | 1.6 | 1.28 | 3.2 | 6.4 | 2.72 | 2.24 | 10 | 10 |
| ⅢЕ-75 | 75 | 350 | 300 | 2.5 | 2.0 | 5.0 | 10.0 | 4.25 | 3.50 | 15 | 15 |
| ⅢE-100 | 100 | 450 | 300 | 3.15 | 2.52 | 6.3 | 12.6 | 5.35 | 4.41 | 20 | 19 |
| IIE-150 | 150 | 500 | 400 | 5.0 | 4.0 | 10.0 | 20.0 | 8.50 | 7.00 | 30 | 30 |
| ⅢE-200 | 200 | 550 | 400 | 6.3 | 5.0 | 12.6 | 25.2 | 10.71 | 8.82 | 40 | 40 |
| ⅢE-250 | 250 | 800 | 430 | 8.0 | 6.4 | 16.0 | 32.0 | 13.6 | 11.2 | 50 | 50 |
| ⅢE-300 | 300 | 1,000 | 450 | 10.0 | 8.0 | 20.0 | 40.0 | 17.0 | 14.0 | 60 | 60 |
※長さは 1m 1.5m 2m 2.5m 3m 3.5m 4m 4.5m 5m 6m 7m 8m 9m 10m 以降1m単位で別注可能
敷鉄板吊り具
バールセッター
スーパーロックフック
【特徴】
- 開閉ロック式(SLH3A)
- 吊り上げ時は自動的に閉鎖ロックがかかり、ワークから外れることがなく安全です。
- 取り外す時はレバー操作で完全に開放ロックがかかり、クレーン等で容易にワークより取り外し(敷鉄板からの抜去)ができます。
- 開口部が大きく開くので、ワークへの取り付け、取り外しがラクにできます。
| 品番 | 容量 (ton) | 寸法(mm) | 質量 (kg) | メーカー希望小売価格 | ||||||||||
|---|---|---|---|---|---|---|---|---|---|---|---|---|---|---|
| L | L1 | L2 | H | H1 | H2 | D | D1 | T | T1 | T2 | ||||
| SLH3A | 3 | 169 | 78 | 38 | 383 | 280 | 145 | 64 | 32 | 54 | 33 | 18 | 3.8 | 27,230 |
※すぐに出荷できるように、18mmかける1.3m在庫しています。
シャックル
JISシャックル SBタイプ
| 呼び t.d | B (口幅) | D (頭径) | L (長さ) | d1 (穴径) | ピン径 | ねじ径 | 重量(kg) | 使用荷重 | |||
|---|---|---|---|---|---|---|---|---|---|---|---|
| SB | SC | SA | tf | kN | |||||||
| 6 | 11 | 17 | 24 | 9 | 8 | M8 | - | 0.04 | - | 0.2 | (1.96) |
| 8 | 14 | 21 | 32 | 11 | 10 | M10 | - | 0.08 | - | 0.315 | (3.09) |
| 10 | 17 | 25 | 40 | 13 | 12 | M12 | - | 0.14 | - | 0.6 | (5.88) |
| 12 | 20 | 32 | 48 | 16 | 15 | M14 | - | 0.28 | - | 1 | (9.8) |
| 14 | 24 | 36 | 56 | 18 | 17 | M16 | - | 0.4 | - | 1.25 | (12.25) |
| 16 | 26 | 40 | 64 | 20 | 19 | M18 | - | 0.57 | - | 1.6 | (15.68) |
| 18 | 29 | 45 | 72 | 22 | 21 | M20 | - | 0.78 | - | 2 | (19.6) |
| 20 | 31 | 50 | 80 | 25 | 24 | M24 | 1.3 | 1.05 | - | 2.5 | (24.5) |
| 22 | 34 | 55 | 88 | 27 | 26 | M24 | 1.9 | 1.45 | - | 3.15 | (30.87) |
| 24 | 39 | 62 | 96 | 31 | 30 | M30 | 2.55 | 2.05 | - | 3.6 | (35.28) |
| 26 | 41 | 66 | 104 | 33 | 32 | M30 | 2.85 | 2.5 | - | 4 | (39.2) |
| 28 | 43 | 70 | 112 | 35 | 34 | M33 | 3.55 | 3.0 | - | 4.8 | (47.04) |
| 30 | 45 | 75 | 120 | 37 | 36 | M36 | 4.35 | 3.65 | - | 5 | (49) |
| 32 | 48 | 80 | 128 | 39 | 38 | M36 | 5.06 | 4.5 | - | 6.3 | (61.74) |
| 34 | 50 | 85 | 136 | 41 | 40 | M39 | 6.15 | 5.2 | 5.6 | 7 | (68.6) |
| 36 | 54 | 90 | 144 | 43 | 42 | M42 | 7.47 | 6.5 | 6.7 | 8 | (78.4) |
| 38 | 57 | 95 | 152 | 47 | 46 | M45 | 9.0 | 7.5 | 7.8 | 9 | (88.2) |
| 40 | 60 | 100 | 160 | 49 | 48 | M48 | 10.6 | 8.8 | 9 | 10 | (98) |
ねじシャックル
| 規格サイズコード | 呼び d.dl | 使用荷重 | B(mm) (口幅) | D(mm) (頭径) | L(mm) (長さ) | 重量 (kg) | 結束数 | ||
|---|---|---|---|---|---|---|---|---|---|
| 黒 | メッキ | tf | kN | ||||||
| A006 | U006 | 6 | 0.12 | (1.176) | 12 | 11 | 25 | 0.023 | 100 |
| A008 | U008 | 8 | 0.23 | (2.254) | 16 | 15 | 31 | 0.046 | 100 |
| A009 | U009 | 9 | 0.3 | (2.94) | 18 | 17 | 36 | 0.073 | 100 |
| A012 | U012 | 12 | 0.5 | (4.9) | 25 | 23 | 46 | 0.17 | 50 |
| A016 | U016 | 16 | 0.8 | (7.84) | 32 | 32 | 60 | 0.43 | 25 |
| A019 | U019 | 19 | 1.0 | (9.8) | 38 | 38 | 75 | 0.74 | 20 |
| A022 | U022 | 22 | 1.5 | (14.7) | 44 | 44 | 86 | 1.15 | 10 |
| A025 | U025 | 25 | 2.0 | (19.6) | 50 | 50 | 98 | 1.63 | 5 |
| A028 | D028 | 28 | 2.5 | (24.5) | 56 | 56 | 110 | 2.4 | 4 |
| A032 | D032 | 32 | 3.2 | (31.36) | 64 | 64 | 124 | 3.6 | 3 |
| A038 | D038 | 38 | 4.5 | (44.1) | 76 | 76 | 146 | 5.85 | 2 |
| A044 | D044 | 44 | 6.5 | (63.7) | 80 | 88 | 165 | 8.2 | 1 |
| A050 | D050 | 50 | 8.0 | (78.4) | 90 | 100 | 180 | 12.6 | 1 |
※メッキ品の標準仕様は6mm〜25mmはユニクロメッキ、28mm以上はドブメッキ(溶融亜鉛メッキ)となっています。
強力長シャックル
| 規格サイズコード | 呼び t-d | 使用荷重 | B (口幅) | D (頭径) | L (長さ) | d1 (ピン径) | 重量 (kg) |
|
|---|---|---|---|---|---|---|---|---|
| tf | kN | |||||||
| A016 | 16 | 2.5 | (24.5) | 40 | 40 | 140 | 16 | 0.82 |
| A019 | 19 | 4.0 | (39.2) | 50 | 45 | 160 | 20 | 1.5 |
| A019200 | 19 | 4.0 | (39.2) | 50 | 45 | 200 | 20 | 1.7 |
| A022 | 22 | 6.0 | (58.8) | 50 | 51 | 170 | 22 | 2.1 |
| A022250 | 22 | 6.0 | (58.8) | 50 | 51 | 250 | 22 | 2.6 |
| A025 | 25 | 8.0 | (78.4) | 50 | 57 | 200 | 25 | 3.0 |
| A025250 | 25 | 8.0 | (78.4) | 50 | 57 | 250 | 25 | 3.4 |
| A032 | 32 | 10.0 | (98) | 64 | 73 | 320 | 32 | 6.8 |
| A038 | 38 | 14.0 | (137.2) | 76 | 88 | 350 | 38 | 10.5 |
| A038450 | 38 | 14.0 | (137.2) | 76 | 88 | 450 | 38 | 12.0 |
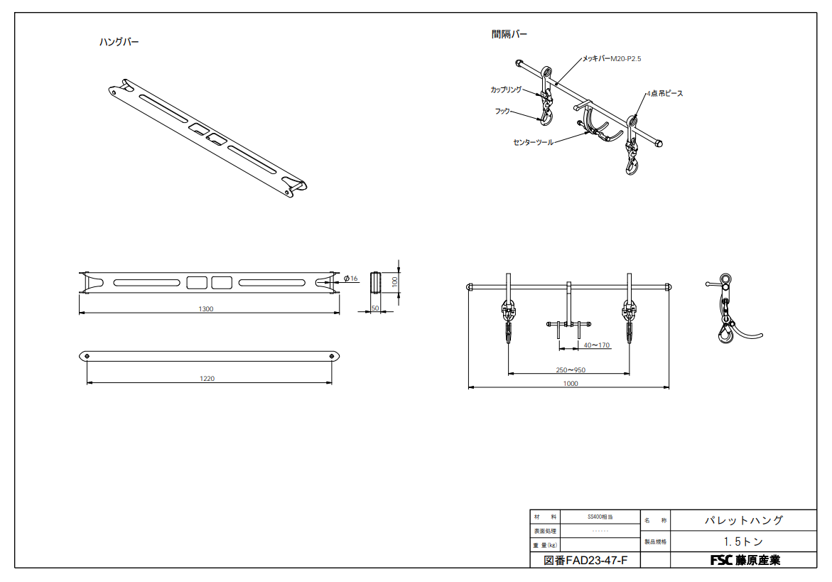
パレットハング (パレット吊治具)
安全に吊れるパレット吊り具 (通常にセットすることで間隔が確保できます)
パレットハング:木製タイプ
- パレット側の接地面が広い(幅100)ので安全です
- 間隔の微調整が可能です
- メッキ仕上げで防錆力が高く、錆に強いです
※木製パレットと4点吊ワイヤーは別売りです
| ■標準セット( ハングバー2本 + 間隔治具2組 )品番:PRTF10st(RPTF11) | |||
|---|---|---|---|
〈 ハングバー 〉 |
|||
| 木製パレット設置幅 | 100㎜ | ![]() |
|
| アイピッチ | 1220㎜ | ||
| 重量 | 1本7kg (2本14kg) |
||
| 表面処理 | 亜鉛メッキ | ||
〈 間隔治具 〉 |
|||
| 設定幅 | 幅自在250~950 (2.5㎜調整) | ![]() |
|
| センター治具 | あり | ||
| 重量 | 1組6.5kg (2組13kg) |
||
| 表面処理 | 電気メッキ+塗装 | ||
| 総セット重量 | 27kg | ||
| 最大使用荷重 | 1.5t | ||
パレットハング:プラスチックタイプ
- パレット側 接地幅250㎜で安全性を実現します
- 全パーツ日本製・メッキ仕上げで、耐候性や防錆性にも優れています
- 強度試験済みで安心してご使用いただけます
※プラスチックパレットと4点吊ワイヤーは別売りです
| ■標準セット( ハングバー2本 )品番:PRTF10bP(PRTFB) | ||
|---|---|---|
〈 ハングバー 〉 |
||
| 木製パレット設置幅 | 250㎜ | ![]() |
| アイピッチ | 1456㎜ | |
| 重量 (総セット重量) | 11kg (22kg) |
|
| 最大使用荷重 | 1.5t | |
| 表面処理 | 亜鉛メッキ | |
オプション
4点吊ワイヤー
| 名称 | 仕様 | 個数 |
|---|---|---|
| ワイヤー(PRTF10y1) | 4点吊ワイヤー:2m Vフック:1.25 | 1組 |
| ワイヤー(PRTF10y2) | 4点吊ワイヤー:2m LSフック:1.25 | 1組 |
| ワイヤー(PRTF10y3) | 4点吊ワイヤー:2m BKフック:1.2 | 1組 |
上部テンビン(PRTF10t) 荷物との接触がありません
| 名称 | 仕様 | 個数 |
|---|---|---|
| 上部テンビン(PRTF10t) | ピッチ:P1250L シャックル(SB-14)4個付き | 1本 |
| ワイヤー 上部(別売) | 麻芯ロックJIS 12mm 1m 片コース | 2本 |
| ワイヤー 下部(別売) | 麻芯ロックJIS 12mm 2m 両コース | 4本 |
パレットハング パンフレット
オキバー(玉掛けワイヤー置き場・ワイヤーラック)
- 玉掛ワイヤー・レバーブロック・ベルトスリングなどが吊れて管理が出来るラック
- 現場での玉掛ワイヤーの整理整頓に!
- 特注品も作成します
- キャスター付きも可能です










































































